Neubau von 1 MFH mit 8 Wohnungen und Tiefgarage – Waldkirch

Infos

Maitre d’ouvrage Stuckert Wohnbau AG
Lieu Am Elzufer 25, 79183 Waldkirch
Mission Phase APD et plans d‘installation
Lots CVC et sanitaire
Période d’étude mai 2025 jusqu’à septembre 2025
Montant global des lots techniques env. 153.000 € HT
Surface d’habitation 650 m²
Surface de garage 350 m²

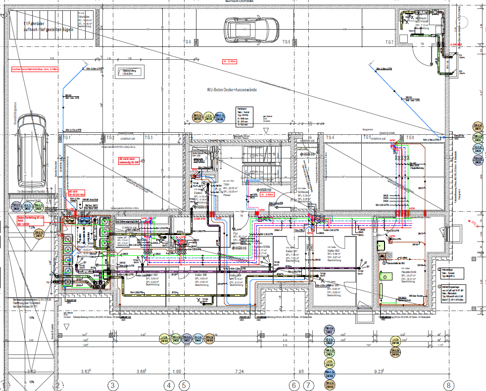
Description du projet

Construction neuve d’un bâtiment d’habitation avec 8 appartements et un garage en sous-sol à Waldkirch, Am Elzufer 25.
Puissance chauffage installée via un réseau de chauffage urbain avec 40 kW pour le plancher chauffant et 215 kW pour la préparation d’ECS
Type de chauffage installé env. 620 m² de plancher chauffant pour 8 appartements
Nombre d’objets sanitaires installés env. 62
Ventilation installée
  • 1 VMC double flux avec max 340 m³/h pour les pièces en sous-sol
  • 1 simple flux pour la salle des poubelles
  • 13 simple flux avec max 100 m³/h pour les pièces sanitaires et celles sans ouvertures vers l’extérieur